歡迎來到浙江國盟電力成套設備有限公司企業官網!
咨詢熱線:0577-62710822TEL:0577-62710822
1010717522@qq.com

GCS型低壓抽出式開關柜(以下簡稱裝置)是兩部聯合設計組根據行業主管部門、廣大電力用戶及設計單位的要求設計研制出的符合國情、具有較高技術性能指標、能夠適應電力市場發展需要并可與現有引進產品競爭的低壓抽出式開關柜。該裝置目前已被電力用戶廣泛選用。
裝置適用于發電廠、石油、化工、冶金、紡織、高層建筑等行業的配電系統。在大型發電廠、石化系統等自動化程度高,要求與計算機接口的場所,作為三相交流頻率為50(60)Hz、額定工作電壓為380(400、660)V、額定電流為4000A及以下的發、供電系統中的配電、電動機集中控制、無功功率補償使用的低壓成套配電裝置。裝置的基本組織形式見左圖。
裝置的設計符合下列標準:IEC439-1低壓成套開關和控制設備 GB7251低壓成套開關設備 JB/T9661-1999低壓抽出式成套開關設備
使用條件
◎ 周圍空氣溫度不高于+40℃,不低于-5℃。24小時內平均溫度不得高于+35℃。超過時,需根據實際情況降容運行。
◎ 戶內使用,使用地點的海拔高度不得超過2000m。
◎ 周圍空氣相對濕度在最高溫度為+40℃時不超過50%,在較低溫度時允許有較大的相對濕度:如+20℃時為90%,應考慮到由于溫度的變化可能會偶然產生 凝露的影響。
◎ 裝置安裝時與垂直面的傾斜不超過5%,且整組柜相對平整(符合GBJ232-82標準)。
◎ 裝置應安裝在無劇烈震動和沖擊以及不足以使電器元件受到不應有腐蝕的場所。
◎ 用戶有特殊要求時,可以與制造廠協商解決
產品型號及含義
基本技術參數
◎ 基本技術參數見表1。
◎ 主電路方案:裝置主電路方案共32組118個規格(見表2),不包括由于輔助電路的控制與保護的變化而派生方案和規格。包括了發電、供用電和其它電力用戶的需要,額定工作電流為4000A,適合為2500KVA及以下的配電變壓器選用。此外,為適應供用電提高功率因數的需要而設計了電容器補償柜;考慮綜合投資的需要而設計了電抗器柜。
◎ 輔助電路方案:GCS輔助電路圖冊共有輔助電路方案120個,分上下兩冊。上冊《交流操作部分》共分63個方案,下冊《直流操作
部分》共有57個方案。
直流操作部分的輔助電路方案,主要用于發電廠變電站的低壓廠(所)用系統。適用于200MW及以下和300MW及以上的容量機組低壓廠用系統,工作(備用)電源進線,電源饋線和電動機饋線的一般控制方式。
交流操作部分的輔助方案主要用于廠礦企業及高層建筑的變電所的低壓系統。有6種適用于雙電源操作控制的組合方案,并設有操作電氣聯鎖備用自投、自復等控制電路,工程設計中可以直接采用。
直流控制電源為直流220V或110V,交流控制電源為交流380V或220V,由抽屜單元組成的成套柜。220V控制電源引自本柜內專設控制變壓器供電的公用控制,公用控制電源采用不接地方式控制變壓器,留有24V電源供需要使用弱電信號燈時采用。銅排的連接部分必須搪錫,推薦采用全長搪錫,也可選用全長鍍銀銅母線。
◎ 母線(主母線的組合形式見附圖4、附圖15),為提高母線動熱穩定能力和改善接觸面的溫升,裝置全部采用TMY-T2系列硬銅排,
銅排的連接部分必須搪錫,推薦采用全長搪錫,也可選用全長鍍銀銅母線。
1.水平母線
水平母線于柜后部母線隔室內,3150A及以上為上下雙層布置,2500A及以下為單層布置, 每相由4條或2條母排組成,大大提高了母線的短路強度。
裝置水平母線銅排選用見表2。
2.垂直母線
用于抽屜柜的垂直母線采用“L”形硬銅搪錫母線。L形母線規格(mm):(高×厚)(50×5)+(底×厚)(30×5)額定電流1000A。
3.中性接地母線
采用硬銅排,貫通水平中性接地線(PEN)或接地+中性線(PE+N)規格見表3。
裝置內垂直PEN線或PE+N線的規格全部選用40×5
△ 電器元件選擇
裝置主要選用技術性能指標先進,采用引進技術國內已能批量生產的電器元件。
1.主開關
630A及以上的電源進線及饋線開關,主選AH系列,也可以用DW40、DW48系列、AE系列、3WE或ME系列,認為有必要時,也可選用進口的M系列或F系列。
2.630A以下的饋線和電動機控制用開關
主要選用TG系列、CM1系列、塑殼開關也可選用NZM系列、TM30系列塑殼斷路器。
3.交流接觸器
主要選用B系列、LC1系列、3TB系列的接觸器以及與之配套的熱繼電器、聯鎖機構。
4.電流互感器全部采用森源電氣有限公司監制的SDH系列、SDL系列、SDL1系列。
5.熔斷器選用高分斷能力的Q系列刀熔和NT00系列。
6.為提高電路的動穩定能力,設計了GCS系列專用的CMJ型組合式母線夾和絕緣支件,采用高強度、阻燃型的合成材料熱塑成型,絕緣強度高,自熄性能好,結構獨特,只需調整積木式間塊即可適用不同規格的母線。(見附圖5)
7.為降低功能單元的間隔板、接插件、電纜頭的溫升,設計了GCS柜專用的接轉件,與同類產品比較轉接件熱容量增大,溫升降低。
8.如設計部門根據用戶需要,選用性能更優良、技術更先進的新型電器元件時,因GCS系列柜具有良好的通用性,不會因更新電器元件,造成制造和安裝方面的困難。
結構特點
◎ 裝置的主構架采用8MF型鋼或C型材,構架采用拼裝和部分焊接兩種結構形式,主構架上均有安裝模數孔E=20mm。
◎ 裝置各功能室嚴格分開,其隔室主要分為功能單元室、母線室、電纜室,各單元的功能相對獨立。
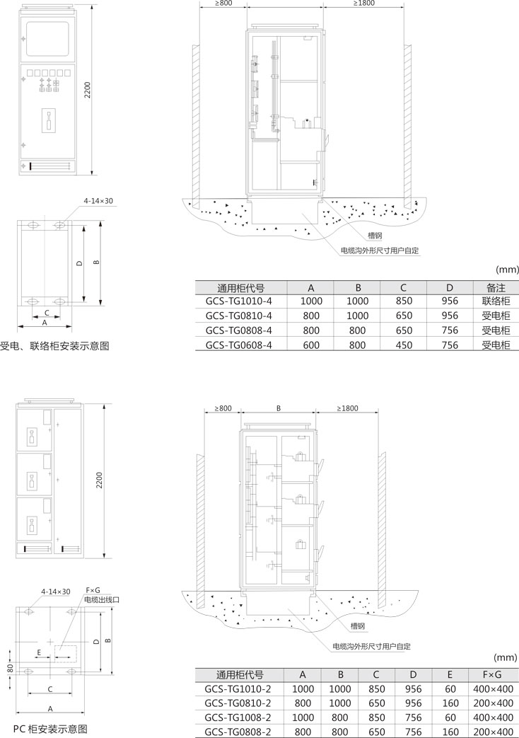
◎ 裝置柜體的尺寸系列如表4。
功能單元
1.抽屜層高的模數為160mm(見附圖9-10)。分為1/2單元、1單元、1.5單元、2單元、3單元五個尺寸系列,單元回路額定電流400A及以下。
2.抽屜改變僅在高度尺寸上變化,其寬度、深度尺寸不變。相同功能單元的抽屜具有良好的互換性。
3.每臺MCC柜最多能安裝11個一單元的抽屜或22個1/2單元的抽屜。其中一單元以上抽屜采用多功能后板(見附圖18)。
4.抽屜進出線根據電流大小采用不同片數的同一規格片式結構的接插件。
5. 1/2單元抽屜與電纜室的轉接采用背板式結構ZJ-2型轉接件。。
6.單元抽屜與電纜室的轉接按電流分檔采用相同尺寸棒式或管式結構ZJ-1型轉接件。
7.抽屜面板具有分、合、試驗、抽出等位置的明顯標志。
8.抽屜單元設有機械聯鎖裝置。
◎ 饋線柜和電動機控制柜有專用的電纜隔室,功能單元室與電纜室內電纜的連接通過轉接件或轉接銅排實現,既提高了電纜的使用可靠
性,又極大地方便了用戶對電纜的安裝與維修。電纜隔室有二個寬度尺寸。(240mm和440m)可供選用,視電纜數量、截面和用戶對裝與維修方便和要求而定(見附圖3)。
◎ 裝置的功能單元輔助接點對數一單元及以上的為32對,1/2單元的為20對,能滿足自動化用戶與計算機接口的需要。
◎ 考慮到干式變壓器使用的普通性安全性和油浸變壓器的經濟性,裝置既可以方便地與干式變壓器組成一個組列,也可以與油浸變壓器低壓母線方便邊接。
◎ 以抽屜為主體,同時具有抽出式和固定式,可以混合組合,任意選用。
◎ 裝置按三相五線制和三相四線制設計,設計部門和用戶可以方便地選用PE+N或PEN方式。
◎ 柜體的防護等級為IP30、IP40,可以按用戶需要選用。
裝置特點
◎ 提高轉接件的熱容量,較大幅度的降低由于轉接件的溫升給接插件、電源頭、間隔板帶來的附加溫升。
◎ 功能單元之間、隔室之間的分隔清晰、可靠,不因某一單元的故障而影響其它單元工作,使故障局限在最小范圍。
◎ 母線平置式排列使裝置的動、熱穩定性好,能承受80/176kA短路電流的沖擊。
◎ MCC柜單柜的回路數最多到22回,充分考慮大單機容量發電,石化系統等行業自動化電動門(機)群的需要。
◎ 裝置與外部電纜的連接在電纜隔室中完成,電纜可以上下進出。零序電流互感器置于電纜隔室內,使安裝維修方便。
◎ 同一電源配電系統,可以通過限流電抗器匹配限制短路電流,穩定母線電壓在一定的數值,還可部分降低對元器件短路強度的要求。
◎ 抽屜單元有足夠數量的二次插件(1單元及以上為32對,1/2單元為20對)可滿足計算機接口和自控回路對接點數量的要求。
安裝與使用
產品到達收貨地點后,首先應當檢查包裝是否完整無損,發現問題應及時通知合同有關部門做好商務記錄,共同分析原因,作好簽證和善后處理。對于不立即安裝的產品,應根據正常使用條件和電氣設備暫時保管規程要求置于適當的場所,妥善保管。
◎ 產品的安裝應按安裝示意圖進行?;A槽鋼和采用螺栓固定方式時的螺栓由用戶自備。主母線連接時,如表面因運輸、保管等原因有不平整時需平整后再連接緊固。
◎ 裝置單獨或成列安裝時,其垂直度以及柜面不平度和柜間隙縫的偏差符合下表規定。
產品安裝后投運前的檢查與試驗
1.檢查柜面漆或其它覆蓋材料(如噴塑)有否損壞,柜內是否干燥清潔。
2.電器元件的操作機構是否靈活,不應有卡澀或操作力過大現象。
3.主要電器的主輔觸頭的通斷是否可靠、準確。
4.抽屜或抽出式結構的動、 靜觸頭的中心線應一致,觸頭接觸應緊。主、輔觸頭的插入深度應符合要求。機械聯鎖或電氣聯鎖裝置應動作 正確,閉鎖或觸鎖均應可靠。
5.相同尺寸的抽屜應能方便的互換,無卡阻和碰撞現象。
6.抽屜與柜體間怕接地觸頭應接觸緊密,抽屜當推入時,抽屜的接地觸頭經主觸頭先接觸,拉出時接地觸頭比主觸頭后斷開。
7.儀表的刻度整定、互感器的變比以及極性應正確無誤。
8.熔斷器的熔芯規格應符合工作設計的要求。
9.保護的額定值及整定應正確,動作可靠。
10.用1000兆歐表測量絕緣電阻值不得低于1MΩ。
11.各母線的連接應良好,絕緣支撐件、安裝件及其它附件安裝應牢固可靠。
使用注意事項
1.裝置為不靠墻安裝,正面操作,雙面維修的低壓配電柜。柜的維修通道及柜門,必須是考核合格的專業人方可進入或開啟進行操作、檢查和維修。
2.空氣斷路器、塑殼斷路器經過多次分、合,特別是經過短路分、合后、會使觸頭部燒傷和產生碳類物質,使接觸電阻增大,應按斷路器使用說明書進行維護和檢修。
3.經過安裝和維修后,必須嚴格檢查各隔離之間、功能單元之間的隔離狀況,以確保本裝置良好的功能分隔性,防止出現故障擴大。
訂貨合同包含以下內容
◎ 產品的全型號包括主電路方案號和輔助電路方案號;
◎ 主電路系統組合順序圖;
◎ 輔助電路電氣原理圖;
◎ 柜內元器件清單;
◎ 電路中電壓、電流、時間等整定參數;
◎ 與產品正常使用不符的其它特殊要求。
外形安裝尺寸
